Petit château
Localisation : Charenton (94)
Date : 2021
Surface : 50m²
Prestation : Menuiseries sur-mesure
La conception de menuiseries sur mesure a été au cœur de l'optimisation de cet appartement qui manquait initialement de rangements. Le choix s'est donc porté sur des meubles apportant du caractère et une touche personnalisée au logement.
Dans le salon, un meuble TV intégré, accompagné d'une petite claustra, offre une séparation subtile avec l'entrée. Une bibliothèque a été dessinée sur mesure pour combler un espace mural peu exploitable, apportant à la fois des rangements supplémentaires et une petite penderie en partie basse. Le choix audacieux d'un vert profond contrasté avec les murs blancs, met en valeur les éléments centraux de la pièce et ajoute une certaine profondeur à l'espace. Associé au bois, il apporte à la fois chaleur et sophistication.
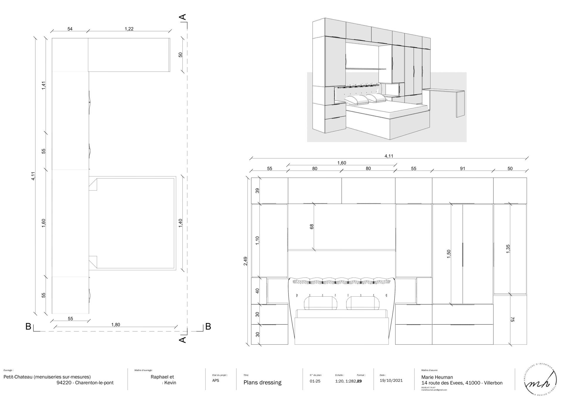
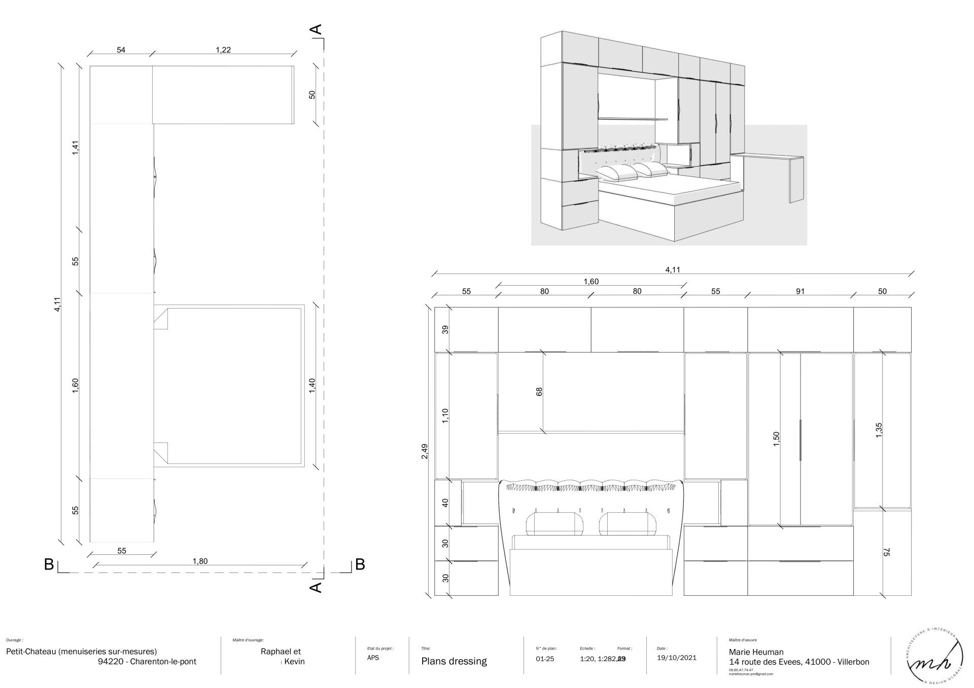
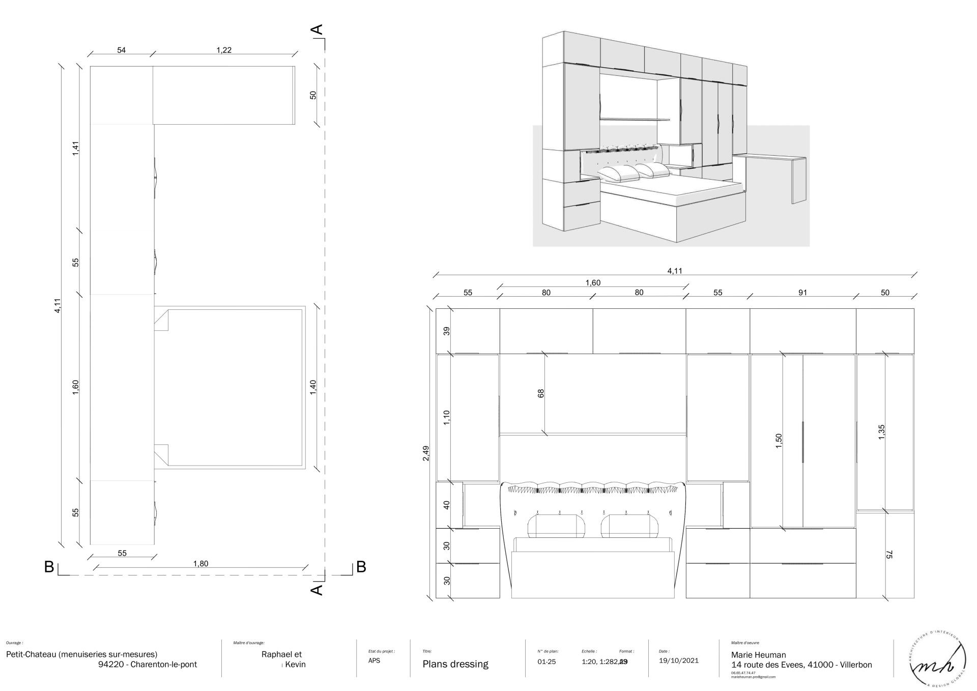
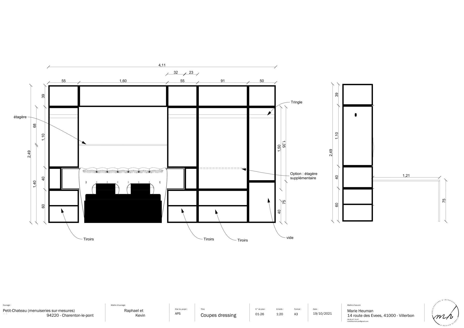
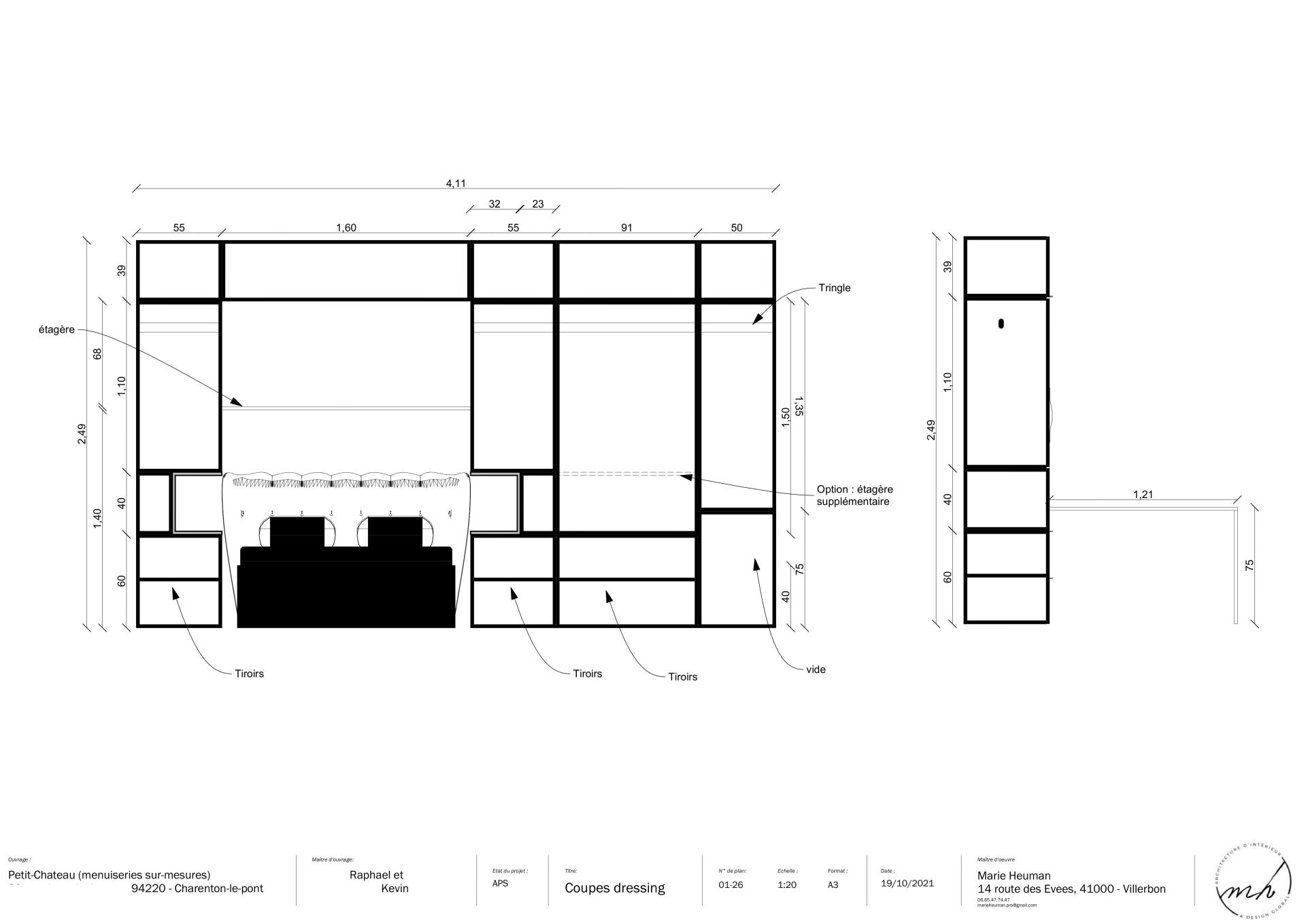
Dans la chambre, où aucun rangement n'était présent à l'origine, un dressing sur mesure a été conçu autour de la tête de lit, offrant une solution astucieuse et pratique. Un bureau a également été intégré, répondant aux besoins des occupants. L'ensemble a été pensé pour maximiser le confort et l'espace de rangement, tout en garantissant une utilisation fluide et fonctionnelle au quotidien. Cette approche sur mesure allie esthétisme et praticité, rendant l'appartement à la fois plus fonctionnel et chaleureux.


























